Quadrilocale in vendita

Foggia, Vicolo del Gelso - Centro
€ 139.000
Prezzo aggiornato
4 locali 4 locali
130 Mq 130 Mq
2 bagni 2 bagni

Quadrilocale in vendita

Foggia, Vicolo del Gelso - Centro

Descrizione annuncio

Se sei alla ricerca di una soluzione pronta da vivere subito, priva di spese condominiali e con ambienti ampi, questa soluzione indipendente in zona centrale a Foggia è la proposta che fa per te.

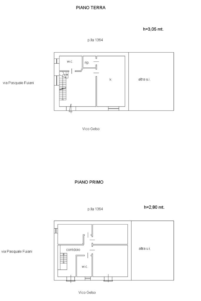
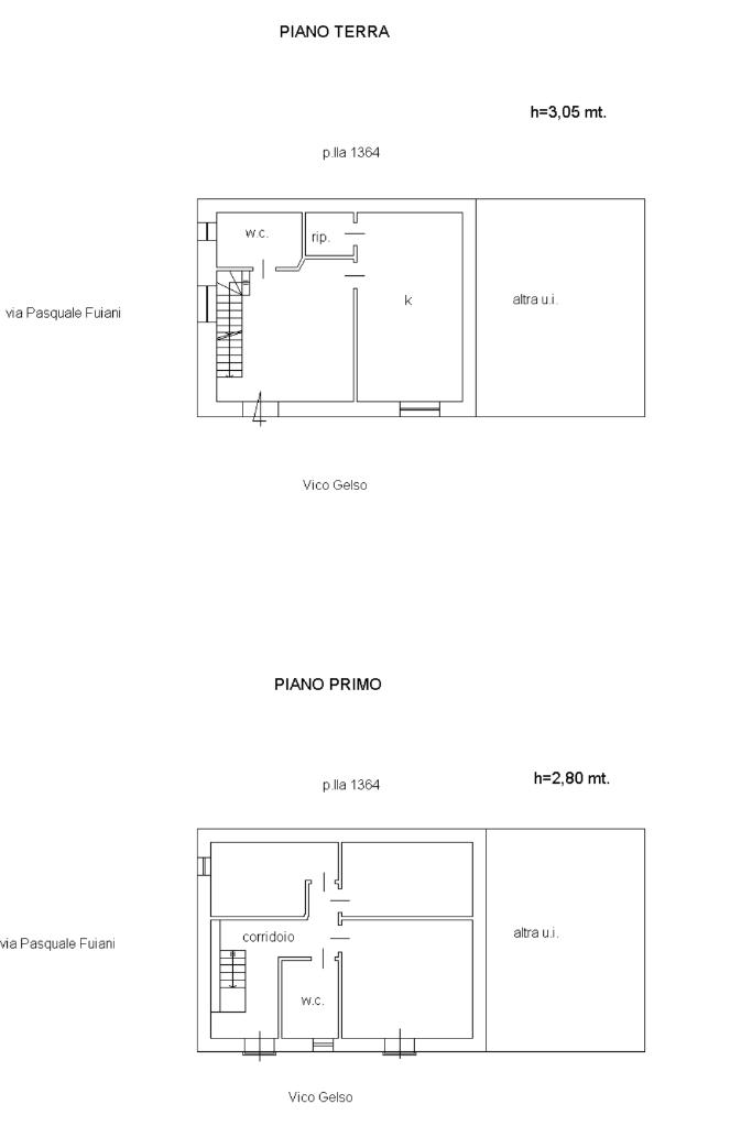
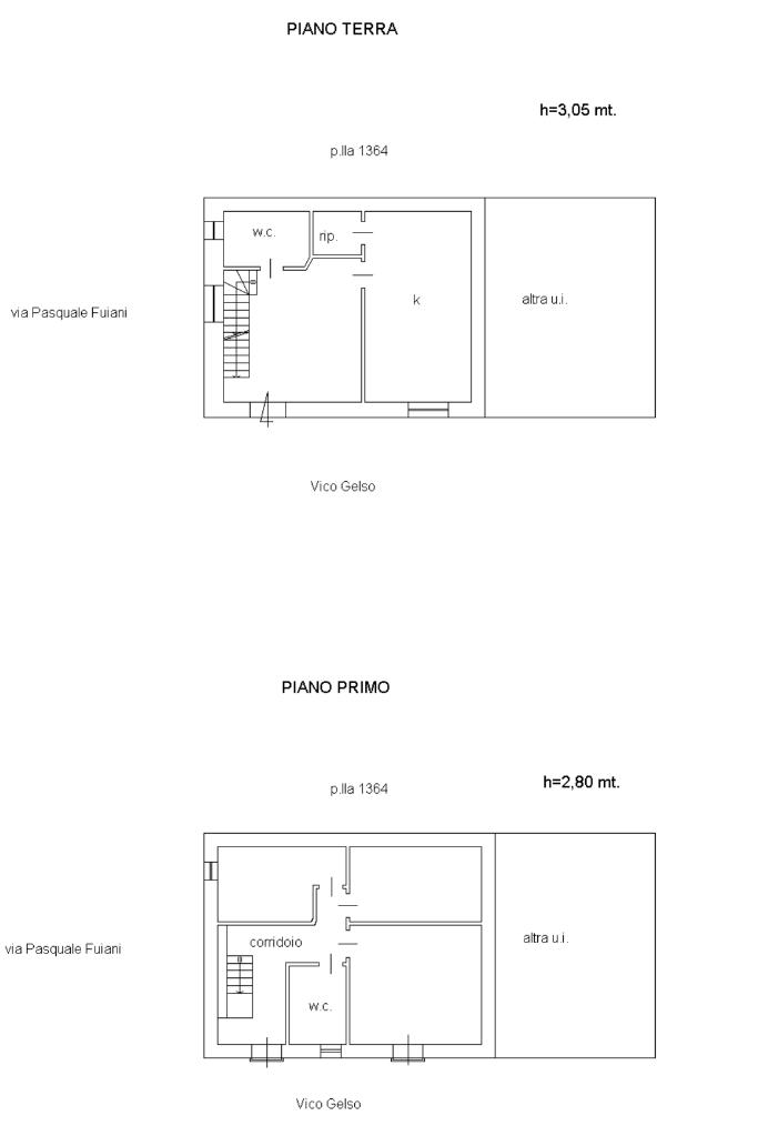
Parliamo di 107 mq distribuiti su tre livelli, con ingresso indipendente, in un contesto riservato ma strategico, e con ottima esposizione solare che garantisce luce e vivibilità in ogni stagione.

L'abitazione si apre ad un comodo soggiorno ideale per momenti di relax o per accogliere gli amici, una cucina abitabile dove potrai goderti pranzi e cene in famiglia e ad un bagno finestrato. Al secondo piano c'è la zona notte con due camerette e una camera da letto con balcone e un bagno, mentre al terzo piano un vano lavanderia con accesso diretto al terrazzo panoramico esclusivo, un angolo di paradiso privato dove potrai organizzare serate all'aperto o semplicemente rilassarti al sole.

La soluzione è stata completamente ristrutturata nel 2011 con impianto di videosorveglianza, antifurto notturno,serrande elettriche, climatizzatori in ogni ambiente e porta d'ingresso blindata.

Inoltre verrà venduta completa di arredo.


Non lasciarti sfuggire questa opportunità unica!

Contattaci subito per fissare una visita e scoprire di persona tutto ciò che questo splendida soluzione ha da offrire. La tua nuova casa ti aspetta!

Mostra tutto

Nelle vicinanze

Trasporto pubblico Trasporto pubblico
stazione di Foggia
stazione di Foggia
1,4 Km
Via P. Fuiani (Gelso)
Via P. Fuiani (Gelso)
10 m
Via P. Fuiani (Sulmona)
Via P. Fuiani (Sulmona)
50 m
Ricariche auto elettriche Ricariche auto elettriche
Enel PAN Foggia Viale degli Aviatori
1,6 Km
Concessionario Nissan Renauto S.P.A.
2,0 Km
Daunia Soccorso Foggia | EnelX
2,0 Km
Scuole Scuole
Università Degli Studi Di Foggia
40 m
Università degli Studi di Foggia
80 m
Dipartimento Di Studi Umanistici Facoltà di Lettere
80 m
Accademia di Belle Arti
310 m
Scuola Edmondo De Amicis
340 m
Farmacia Farmacia
Sant'Anna
320 m
Farmacia Centrale
400 m
Farmacia del Leone
470 m
D.ssa Prencipe
580 m
Farmacia San Giovanni
610 m
Ospedali Ospedali
Dipartimento Dipendenze Patologiche
870 m
Casa di Cura "Maria Grazia Barone"
970 m
Clinica Colonnello D'Avanzo
1,1 Km
Casa della Divina Provvidenza Ospedale "Don Uva"
1,3 Km
Ospedali Riuniti di Foggia
1,3 Km
Supermercati Supermercati
Sigma
830 m
Supermercati dok
850 m
La Prima Srl
970 m
La Prima
990 m
MD
1,0 Km
Negozi Negozi
L'Angolo del Fornaio
250 m
La Bontà delle Tre Spighe
350 m
United Colors of Benetton
580 m
Class
580 m
Negozi
590 m
Bar Bar
Smallest chicchetteria
470 m
Bar Duetto
630 m
Gate Caffè
720 m
La ghiacciaia
730 m
Bar, pasticceria, gelateria "Dolce Grazia"
860 m
Ristoranti Ristoranti
Terra Arsa
240 m
Capriccio all'Italiana
340 m
I Cavalieri
520 m
Ristorante enoteca Leonardo
620 m
Sacro Cuore
630 m
Mostra tutto

Caratteristiche

Rif.:
61113047
Piano:
Rialzato di 3
Totale piani:
3
Balconi:
2
Terrazzi:
1
Camere da letto:
3
Mostra tutto
Prezzo Prezzo
€ 139.000
Rata mutuo Rata mutuo
€ 649 / mese
Spese annue Spese annue
€ 0
Proponi il tuo prezzoProponi il tuo prezzo

Classe Energetica

E
E
E
E
E
E
E
E
E
Anno di costruzione:
1967
Riscaldamento:
Autonomo
Tipo impianto:
A radiatori
Tipo alimentazione:
Metano

Prezzo ridotto di €1 (5%%)

Ti interessa visionare l'immobile?

Fissa un appuntamento  Fissa un appuntamento

Richiedi informazioni

Clicca su Leggi per aprire l'informativa
* Questi campi sono obbligatori

Calcola il tuo mutuo

Semplice e senza impegno
Anticipo

( % )
Mutuo

( % )

pochi semplici passi

inserisci i tuoi dati
Questionario completato
Grazie per aver richiesto un appuntamento senza impegno con un nostro Consulente del Credito e Assicurativo.

Hai inserito correttamente tutti i dati necessari e a breve riceverai una e-mail con un link da convalidare per inviare i tuoi dati.
Affiliato
Studio Garibaldi Sas
Corso Garibaldi, 97 71121 Foggia (FG)

Il nostro staff


  • Michele Nardella
    Affiliato

  • Erika Campaniello
    Coordinatrice

  • Ismaele Perdonò
    Collaboratore

  • Martina Assunta Siesto
    Collaboratrice
Corso Garibaldi, 97 71121 Foggia (FG)
Zona: Foggia-Centro - C.so Garibaldi- Via V. Civili - San Ciro - Via Telesforo
Mostra su mappa
Orari: da lunedì a venerdì dalle ore 09.00 alle 13.00 e dalle 16.00 alle 20.30 - sabato dalle ore 09.00 alle 13.00
Affiliato
Studio Garibaldi Sas
Corso Garibaldi, 97 71121 Foggia (FG)

2026 Tecnocasa Franchising S.p.A. - P. IVA 08365160152 - Via Monte Bianco 60/A 20089 Rozzano (MI). Ogni agenzia ha un proprio titolare ed è autonoma. Privacy policy | Policy utilizzo | Cookie policy